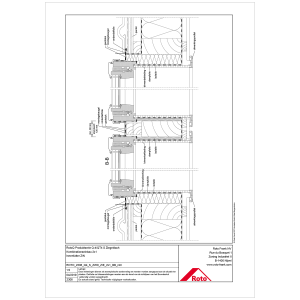
A 2D CAD Einbauzeichnungen / Détails d’installation 2D

Zweidimensionale CAD-Details werden nach Kundenvorgeben erstellt.

Comments are closed.